All aspects of residential construction inside and out. Horsham and surrounding areas
All aspects of residential construction inside and out. Horsham and surrounding areas
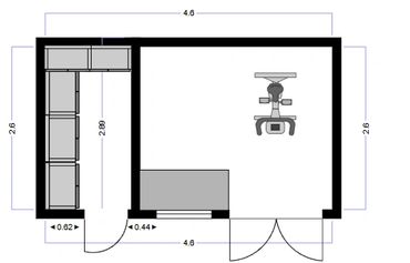
PHG Garden Rooms can build bespoke spaces to your exact needs. Whether its a Home Office, Luxury Gym, Home Cinema or simply extra space to entertain family and friends. The choice is yours!
Alongside this we can provide all the hard and soft landscaping to compliment your new Garden Room.
Start Enjoying your outdoor space to its full potential!

Full design service is included and 3D image modelling can be produced to help you envision what your project will look like. We also have set templates that can be adjusted to suit your specific requirements.

We pride ourselves on being very competitively priced. Securing great prices for materials and efficient working practices means we can pass on significant savings to our clients. Have a price from elsewhere?......drop us a line through our contact us section and see how much you could save!






Copyright © 2026 PHG Developments - All Rights Reserved.